Koronowo (gw), Łąsko Wielkie SFE-MS-10104
Mieszkanie na sprzedażCena: 169 000 zł
3 632,85 zł/m2
Szczegóły
Opis nieruchomości:
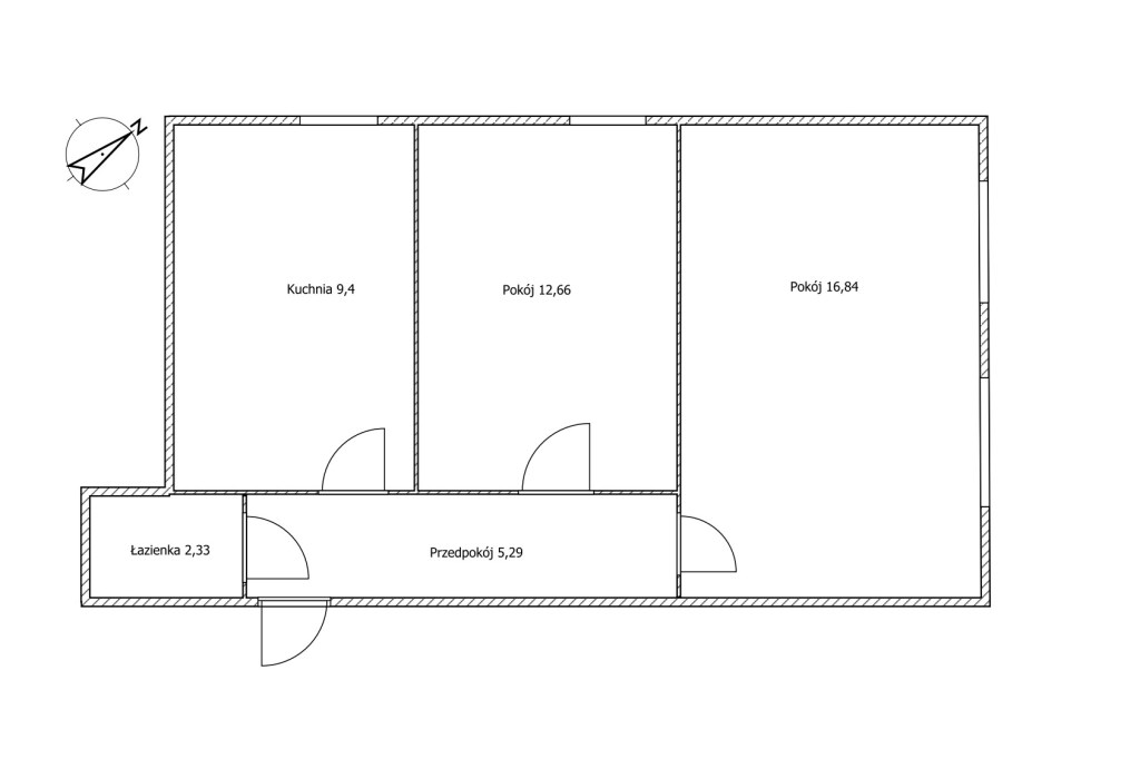
Mieszkanie dwupokojowe (46,52m2) na parterze w bloku mieszkalnym na w Łąsku Wielkim - gmina Koronowo
Mieszkanie znajduje się na parterze bloku mieszkalnego w Łąsku Wielkim, urokliwej wiosce należącej do gminy Koronowo. To doskonała lokalizacja dla osób ceniących spokój, dostęp do przyrody, a zarazem bliskość infrastruktury publicznej i dobrych połączeń transportowych z Bydgoszczą i regionem.
DOSTĘP DO PRZYRODY - RAJSKIE OTOCZENIE
To jest główna zaleta tego mieszkania. Łąsko Wielkie to brama do największych przyrodniczych atrakcji regionu:
ZALEW KORONOWSKI (~4-5 KM)
Jezioro o powierzchni 1560 ha – jedno z największych w Polsce. Doskonałe do:
Wędkowania – bogata fauna rybna
Żeglarstwa – sporty wodne
Spacerów nad jeziorem – malownicze tereny
Wypoczynku rodzinnego – plaże, pola campingowe, hotele
SZLAK JEZIOR KORONOWSKICH
Szlak pieszy przebiegający przez ŁĄSKO WIELKIE ! To główna trasa turystyczna regionu:
Całkowita długość: 77 km
Przebieg: Wudzyn – Sokole – Krówka – Łąsko Wielkie – Buszkowo – Byszewo – Koronowo – Samociążek – Stronno
Idealny do spacerów.
Wiele możliwości fotografii przyrody
STANDARD:
Podłogi – panele, gres
Ściany - gładź gipsowa, glazura;
Parapety – PCV;
Okna – PCV.
W cenie pozostaje: zabudowa kuchenna ze sprzętem AGD, armatura łazienkowa oraz meble.
OPIS BUDYNKU
Jednopiętrowy blok mieszkalny wybudowany w 1980 roku.
INFORMACJE DODATKOWE
Przyległości: piwnica, duże pomieszczenie gospodarcze, wydzielony ogródek na części wspólnej
Ogrzewanie: piec na węgiel
Wysokość czynszu: 50 zł fundusz remontowy
Wystawa okien: pn-zach, pn-wschód
Mieszkanie znajduje się na parterze bloku mieszkalnego w Łąsku Wielkim, urokliwej wiosce należącej do gminy Koronowo. To doskonała lokalizacja dla osób ceniących spokój, dostęp do przyrody, a zarazem bliskość infrastruktury publicznej i dobrych połączeń transportowych z Bydgoszczą i regionem.
DOSTĘP DO PRZYRODY - RAJSKIE OTOCZENIE
To jest główna zaleta tego mieszkania. Łąsko Wielkie to brama do największych przyrodniczych atrakcji regionu:
ZALEW KORONOWSKI (~4-5 KM)
Jezioro o powierzchni 1560 ha – jedno z największych w Polsce. Doskonałe do:
Wędkowania – bogata fauna rybna
Żeglarstwa – sporty wodne
Spacerów nad jeziorem – malownicze tereny
Wypoczynku rodzinnego – plaże, pola campingowe, hotele
SZLAK JEZIOR KORONOWSKICH
Szlak pieszy przebiegający przez ŁĄSKO WIELKIE ! To główna trasa turystyczna regionu:
Całkowita długość: 77 km
Przebieg: Wudzyn – Sokole – Krówka – Łąsko Wielkie – Buszkowo – Byszewo – Koronowo – Samociążek – Stronno
Idealny do spacerów.
Wiele możliwości fotografii przyrody
STANDARD:
Podłogi – panele, gres
Ściany - gładź gipsowa, glazura;
Parapety – PCV;
Okna – PCV.
W cenie pozostaje: zabudowa kuchenna ze sprzętem AGD, armatura łazienkowa oraz meble.
OPIS BUDYNKU
Jednopiętrowy blok mieszkalny wybudowany w 1980 roku.
INFORMACJE DODATKOWE
Przyległości: piwnica, duże pomieszczenie gospodarcze, wydzielony ogródek na części wspólnej
Ogrzewanie: piec na węgiel
Wysokość czynszu: 50 zł fundusz remontowy
Wystawa okien: pn-zach, pn-wschód
Podobne oferty
Bydgoszcz, Skrzetusko
Mieszkanie na sprzedaż
3 pokoje
61,00 m2
Rozkładowy trzypokojowy apartament (60,57m2) na piątym piętrze z DUŻYM balkonem na prestiżowym osiedlu Paryskim w…
854 000 zł
14 000,00 zł/m2
Bydgoszcz, Centrum
Mieszkanie na sprzedaż
2 pokoje
48,00 m2
Dwupokojowe mieszkanie w kamienicy – parter, bezczynszowe, gotowe do zamieszkania Przytulne, dwupokojowe mieszkanie o przejściowym…
275 000 zł
5 729,17 zł/m2
Bydgoszcz, Centrum
Mieszkanie na sprzedaż
3 pokoje
88,50 m2
Przestronne mieszkanie trzy-pokojowe (88,5 m2) położone na drugim piętrze w zrewitalizowanej kamienicy na bydgoskim Śródmieściu.…
499 000 zł
5 638,42 zł/m2