Bydgoszcz, Szwederowo SFE-MS-10068

Mieszkanie na sprzedaż
Cena: 329 000 zł
7 014,93 zł/m2

Szczegóły

  • Symbol ofertySFE-MS-10068
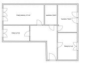
  • Powierzchnia46,90m2
  • Ilość pokoi3
  • Powierzchnia pokoi15/8,5/7
  • Piętro / Ilość pięterparter/4
  • Standard
  • Stan lokaludo odnowienia
  • OknaPCV
  • Balkonbrak
  • Rodzaj budynkublok
  • Technologia budowlanapłyta po termomodernizacji
  • Rok budowy1970
  • Stan prawnyOdrębna własność lokalu
  • Miesięczny czynsz650,00zł
  • OgrzewanieC.O. miejskie

Opis nieruchomości:

Przytulne 3-pokojowe mieszkanie na Szwederowie – parter, niski blok!

Na sprzedaż 3-pokojowe mieszkanie o powierzchni 46,90 m², położone na parterze niskiego bloku w jednej z najbardziej pożądanych lokalizacji w Bydgoszczy – osiedlu Szwederowo.

Lokal składa się z trzech nieprzejściowych pokoi, osobnej kuchni, łazienki oraz przedpokoju. Brak balkonu rekompensuje wygodny dostęp do budynku – idealne rozwiązanie dla rodzin z dziećmi, seniorów lub osób ceniących komfort codziennego życia bez schodów.

Mieszkanie w stanie do sporego odświeżenia/remontu, co daje szerokie możliwości aranżacyjne – z łatwością urządzisz je według własnego gustu i potrzeb.

Szwederowo to dzielnica z doskonale rozwiniętą infrastrukturą – w pobliżu znajdują się sklepy, szkoły, przedszkola, punkty usługowe, przystanki autobusowe i tereny zielone. Do centrum miasta zaledwie kilka minut!

To idealna propozycja zarówno dla rodzin, jak i inwestorów poszukujących mieszkania z potencjałem w świetnej lokalizacji

STANDARD:
Podłogi – panele, mozaika, terakota;
Ściany – gładź;
Parapety – PCV;
Okna – PCV.
W cenie pozostaje: umeblowanie, oraz wyposażenie kuchni i łazienki.

OPIS BUDYNKU
Czteropiętrowy blok mieszkalny, wybudowany w 70'latach, blok ocieplony. Zadbany teren dookoła bloku.

INFORMACJE DODATKOWE
Przyległości: piwnica.
Zabezpieczenia: domofon, drzwi antywłamaniowe.
Ogrzewanie: miejskie.
Wysokość czynszu: 650 zł
Wystawa okien: wschód, zachód; widok na: plac zieleni.

Grzegorz Ciąćka

Manager